武田機電


捷克VUHZ.A.S是世界最著名的結晶液位傳感器制造商,產品廣泛地應用于世界各大鋼廠,在中國,寶鋼,鞍鋼,首鋼京唐,唐鋼,包鋼,邯鋼,湘鋼,漣鋼等大中小型鋼廠都在使用VUHZ的液位檢測產品.
VUHZ產品以其世界上最領先的科技水平,突破了傳統的檢測系統的局限, 傳統的檢測系統一般采用Co一60或浮球檢測系統。其中Co—60檢測雖然精度高,但其具有放射性,需要專業人員保管和使用,安全性不高。而浮球是采用耐材制造的,會受到鋼水的侵蝕,需定期人為更換和預熱,增加操作人員的勞動強度和中斷整個控制系統降低鑄機的效率。VUHZ公司電磁感應式傳感器,測量范圍為0~160mm。VUHZ傳感器安裝在結晶器的頂部。冷卻系統采用直接用鑄機的一次冷卻水閉環冷卻,幾乎不用另增設備.
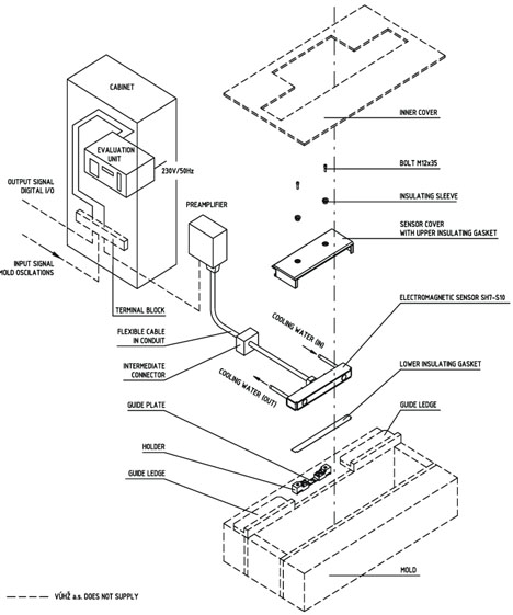
VUHZ結晶液位控制系統包括有VUHZ液位傳感器SH7-S10,VUHZ前置放大器SH-P,VUHZ信號處理器SH-E,VUHZ液位傳感器電纜,VUHZ信號處理器連接電纜, VUHZ螺栓,VUHZ傳感器安裝固定底座,VUHZ傳感器保護蓋板, VUHZ絕緣保護軸套, VUHZ導向墊板, VUHZ絕緣墊片及VUHZ工具.
VUHZ安裝結構示意圖:

VUHZ采購備件清一覽表:
序號 |
品名 |
規格型號 |
1 |
VUHZ液位檢測傳感器 |
MOLD LEVEL SENSOR SH7-S10 |
2 |
VUHZ信號處理器 |
EVALUATION UNIT SH-E |
3 |
VUHZ前置放大器 |
PRE-AMPLIFIER SH-P |
4 |
VUHZ液位檢測傳感器電纜 |
SENSOR CABLE |
5 |
VUHZ 信號處理器連接電纜 |
SET OF CABLES |
6 |
VUHZ螺栓 |
SCREW |
7 |
VUHZ傳感器安裝固定底座 |
SENSOR HOLDER COMPLETE |
| SENSOR HOLDER |
| SCREW |
| WASHER FOR SENSOR HOLDER |
8 |
VUHZ傳感器保護蓋板 |
SENSOR COVER |
9 |
VUHZ絕緣保護軸套 |
INSULATION SLEEVE S/S |
10 |
VUHZ導向墊板 |
GUIDE FEATHER COMPLETE |
| ①GUIDE FEATHER |
| ②SCREW DIN963 M8×16-I |
11 |
VUHZ絕緣墊片 |
BOTTOM INSULATION GASKET |
12 |
VUHZ工具 |
VUHZ TOOL SET |
| SIMULATOR PREAMPLIFIER & SENSOR CA |
| SIMULATOR FOR SENSOR CP |
| VUHZ SIMULATION PLATE |
| TORQUE WRENCH WITH ALLEN KEY SET |
| SCREW DRIVER W.OPEN SPANNER SET |
| INSULATION RESISTANCE METER |
| Grease Belzona 8211HP |
| SEAL & BOND FLEX-SIL (RED) |
| GAUGE FOR SENSOR HOLDER POS |
| MOULD LEVEL SIMULATOR H3 |
Mold level measurement is not sensitive to local meniscus disturbances, such as vortices caused by argon blowing, various types of waves, etc. Sensor's viewing field width is approx. 600 mm and sensor measures mean molten steel level at this section of the mold's width. Typical course of characteristic is shown in.
2.3 Electromagnetic sensor SH7-S10
The sensor has shape of prism. The sensor is made of stainless non-ferromagnetic steel. Two sensing coils are located symmetrically to the axis.
The sensor is fastened to the mold by means of sensor cover, which serves as a clamp and which protects the sensor as well. The sensor cover is screwed on to two special holders fixed to the water jacket – see chapter 4. The cable between sensor and pre-amplifier may consist of two parts. Flexible cable is firmly soldered to each sensor. On the mold top an intermediate connector coupling may be placed, which is connected with pre-amplifier by second part of the cable.
2.4 BASIC TECHNICAL DATA
Electromagnetic sensor SH7-S10
Measuring range: 20 to 160 mm below the top edge of the mold
Nominal range: 60 to 100 mm
Minimum mold level that can be indicated: 250 mm (= the lowest indicated level)
Minimum mold size: 100 x 600 mm; maximum – no limits.
Storing temperature for the sensor without water: 0°C to 60°C
Sensor is resistant against a short-time molten slag overflow.
Steel drops or coherent steel layer are not allowed on the surface of the sensor.
Sensor’s cable length: up to 10 m
Protection: sensor IP 56, connector on the cable IP 65 (in connected and locked position)
Dimensions: see Fig. 1.9
Mass: approx. 28 Kg incl. cable in a protective hose (conduit) and connector
Relative humidity: 100%
Preamplifier SH-P
Power supply: from evaluation unit
Dimensions: preamplifier is situated in a junction box – size 300 X 300 X 150 mm
Mass: approx. 7 kg
Protection: IP 55
Ambient temperature: -20 to + 60°C
Relative humidity: up to 90%
Evaluation unit SH-E
Output signal: 4 to 20 mA or 0 to 20 mA/500 ohms
VUHZ a.s.
Digital setting-up of the slope, e.g.: 4 mA = 160 mm, 20 mA = 20 mm
VUHZ傳感器內部基本結構原理。由勵磁線圈S和檢測線圈L和檢測線圈R組成。勵磁采用峰峰值15V頻率800HZ的信號。由于澆注時鋼液面上有保護渣層,而此勵磁產生的電磁信號可以穿透10mm的渣層和18mm鋼水。但該電磁信號不能穿透銅板,因此在傳感器的其它部位使用銅質的外殼。電磁信號經過鋼液面反射回來分別在兩個檢測線圈上產生與鋼液面的高度成相應關系的感應電動勢VL和VR。電動勢Ve(Ve=VL+VR)和結晶器振動的頻率(fo)和振幅(Fo)信號一起作為變送器的輸入信號經過補償、轉換成標準的4~20mA液位信號。
VUHZ結晶液位控制系統
VUHZ液位傳感器SH7-S10,
VUHZ前置放大器SH-P,
VUHZ信號處理器SH-E,
VUHZ液位傳感器電纜,
VUHZ信號處理器連接電纜,
VUHZ螺栓,
VUHZ傳感器安裝固定底座,
VUHZ傳感器保護蓋板,
VUHZ絕緣保護軸套,
VUHZ導向墊板,
VUHZ絕緣墊片
VUHZ工具.